/ Торгова площадка
/ Інше
/ Інше
Куплю Інше,
Дата подачи заявки: 11.06.2020
ID: 139850,
Область: Київська область,
Район: Києво-святошинський
Товар: Інше,
Количество: 1 т.
Цена: договірна
Притискний щит або заготовка (рамка) куплю
На постійній основі купую притискної щит або заготовку рамку.
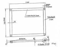
Розміри вказані в кресленні (на фото).
Телефонуйте.
0676358080 Тетяна
Телефон:
email:
Контактна особа: Тетяна
Інше. Торгова площадка України
Куплю Інше,
Дата подачи заявки: 11.06.2020
ID: 139850,
Область: Київська область,
Район: Києво-святошинський
Товар: Інше,
Количество: 1 т.
Цена: договірна
Притискний щит або заготовка (рамка) куплю
На постійній основі купую притискної щит або заготовку рамку.
Розміри вказані в кресленні (на фото).
Телефонуйте.
0676358080 Тетяна
Телефон:
email:
Контактна особа: Тетяна
Дивитись всі оголошення врозділі Інше