/ Торговая площадка
/ Прочее
/ Различные товары для сельского хозяйства
Куплю Различные товары для сельского хозяйства ,
Дата подачи заявки: 11.06.2020
ID: 139468,
Область: Полтавская область,
Район: Полтавский
Товар: Различные товары для сельского хозяйства ,
Количество: 1 т.
Цена: договорная
Куплю прижимной щит или заготовку
Куплю прижимной щит или заготовку рамку на постоянной основе.
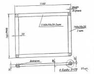
Размеры прижимного щита указаны в чертеже на фотографии.
Подробности по телефону.
Звоните, по цене договоримся.
0676358080 Татьяна
Телефон:
email:
Контактное лицо: Владимир
Различные товары для сельского хозяйства. Торговая площадка Украины
Куплю Различные товары для сельского хозяйства ,
Дата подачи заявки: 11.06.2020
ID: 139468,
Область: Полтавская область,
Район: Полтавский
Товар: Различные товары для сельского хозяйства ,
Количество: 1 т.
Цена: договорная
Куплю прижимной щит или заготовку
Куплю прижимной щит или заготовку рамку на постоянной основе.
Размеры прижимного щита указаны в чертеже на фотографии.
Подробности по телефону.
Звоните, по цене договоримся.
0676358080 Татьяна
Телефон:
email:
Контактное лицо: Владимир
Смотреть все обявления в разделе Различные товары для сельского хозяйства